Apartamento de Trinta Metros Quadrados

Apartamento de Trinta Metros Quadrados

  • Foto Liza Brito
  • Liza Brito
  • 3 comentários

Apartamento de Trinta Metros Quadrados foi planejado pelo Studio para uma mulher prática e que gosta de espaços amplos.

Apartamento de Trinta Metros Quadrados foi planejado pelo Studio para uma mulher prática e que gosta de espaços amplos.

Apesar de ser um apartamento pequeno, esse projeto foi pensado para garantir a  sensação de amplitude e, tanto com planejamento dos móveis como a melhor disposição do ambientes.  A técnica de divisão inteligente foi opção a partir da localização do chaft e a localização da janela com acesso a varanda. 

Veja mais apartamentos com vista!

Apartamento de Trinta Metros Quadrados

O quarto, que na verdade é só o espaço da cama de casal, é de interior totalmente branco e com nichos para aproveitamento total para armazenamento.

As cores deste apartamento ficam no tapete azul claro e cadeiras em tons naturais. Tudo muito clean!!

Veja apartamento na Quinta da Boa Vista!

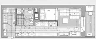
Apartamento de Trinta Metros Quadrados

1 hall de entrada

2 closet

3 banheico com lavanderia

4 corredor cozinha

5 varanda

Apartamento de Trinta Metros Quadrados

Os armários com profundidade de 40 cm para não atrapalhar a acessibilidade do corredor, já a cozinha tem profundidade de 60 cm.

Apartamento de Trinta Metros Quadrados

banheiro com porcelanato efeito cimentício e ladrilho hidráulico.

Apartamento de Trinta Metros Quadrados

Ladrilho hidráulico combina com gabinete de móvel planejado. 

Apartamento de Trinta Metros Quadrados

Banheiro visto de cima.

Apartamento de Trinta Metros Quadrados

Tamanho mínimo para disposição da cozinha com geladeira embutida e armários superior duplo.

Apartamento de Trinta Metros Quadrados

Caixa da cama vista da sala.

Apartamento de Trinta Metros Quadrados

A caixa da cama com integração ao living.

Foto Liza Brito
LIZA BRITO

Designer de interiores por formação e louca por arte. Idealizadora do Sua Casa Moderna, onde fala sobre tendências de decoração com materiais renováveis, bem estar verdadeiros baseado em pesquisas, e obras pelo mundo.

Categorias
Assine a nossa newsletter

Cadastre-se gratuitamente e seja o primeiro a ser notificado sobre novas postagens.