Micros Apartamentos Masculinos

Micros Apartamentos Masculinos

  • Foto Liza Brito
  • Liza Brito
  • 3 comentários

O que esses apartamentos tem em comum, além de serem projetos da Archiplastica, eles são pequenos espaços com decoração masculina (com detalhe amarelo em ambos).

O que esses apartamentos tem em comum, além de serem projetos da Archiplastica, eles são pequenos espaços com decoração masculina (com detalhe amarelo em ambos).

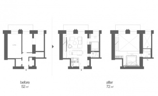
O primeiro Mihaylovskaya foi projetado para aluguel no antigo distrito de Kiev. Como se observa na foto, a área foi aumentada com o mezanino e virou um loft com 72m². Possui dois dormitórios e sala integrada a cozinha. Armários planejados que aproveitam a parede inteira e balcão da cozinha. No primeiro dormitório, no térreo do apartamento, só a cama e home Office, ambiente separado da sala por uma porta de correr de madeira mel. No segundo quarto, é uma suíte no mezanino, o armário está em frente à escada e o banheiro projetado estrategicamente acima do banheiro do piso inferior.

pequenos espaços com decoração masculina
pequenos espaços com decoração masculina
pequenos espaços com decoração masculina
pequenos espaços com decoração masculina
pequenos espaços com decoração masculina
pequenos espaços com decoração masculina
pequenos espaços com decoração masculina
pequenos espaços com decoração masculina
pequenos espaços com decoração masculina
pequenos espaços com decoração masculina
pequenos espaços com decoração masculina

Este loft em Komforttown é menor - aproximadamente 30m² - e foi totalmente alterado para melhor aproveitamento do espaço. Pasmem: As paredes cheias de ondas! A entrada a esquerda fica um pequeno closeth e a direita o banheiro. Seguindo, a sala integrada à cozinha, e no fundo do apartamento fica a cama de casal redonda separada por uma parede que acompanha suas curvas.

pequenos espaços com decoração masculina
pequenos espaços com decoração masculina
pequenos espaços com decoração masculina
pequenos espaços com decoração masculina
pequenos espaços com decoração masculina
pequenos espaços com decoração masculina
pequenos espaços com decoração masculina

O terceiro apê foi planejado para um jovem engenheiro do centro histórico de Kiev. Possui 35m² bem distribuídos. Aqui algumas paredes também foram removidas para integração e ampliação do espaço. Sala integrada à cama! Permite que o morador assista TV tanto na cama como na sala de estar. Seguindo temos a cozinha com uma mesinha de apoio. Para armazenamento têm dois armários, o primeiro na sala e o segundo em frente à cama.

pequenos espaços com decoração masculina
pequenos espaços com decoração masculina
pequenos espaços com decoração masculina
pequenos espaços com decoração masculina
Foto Liza Brito
LIZA BRITO

Designer de interiores por formação e louca por arte. Idealizadora do Sua Casa Moderna, onde fala sobre tendências de decoração com materiais renováveis, bem estar verdadeiros baseado em pesquisas, e obras pelo mundo.

Categorias
Assine a nossa newsletter

Cadastre-se gratuitamente e seja o primeiro a ser notificado sobre novas postagens.